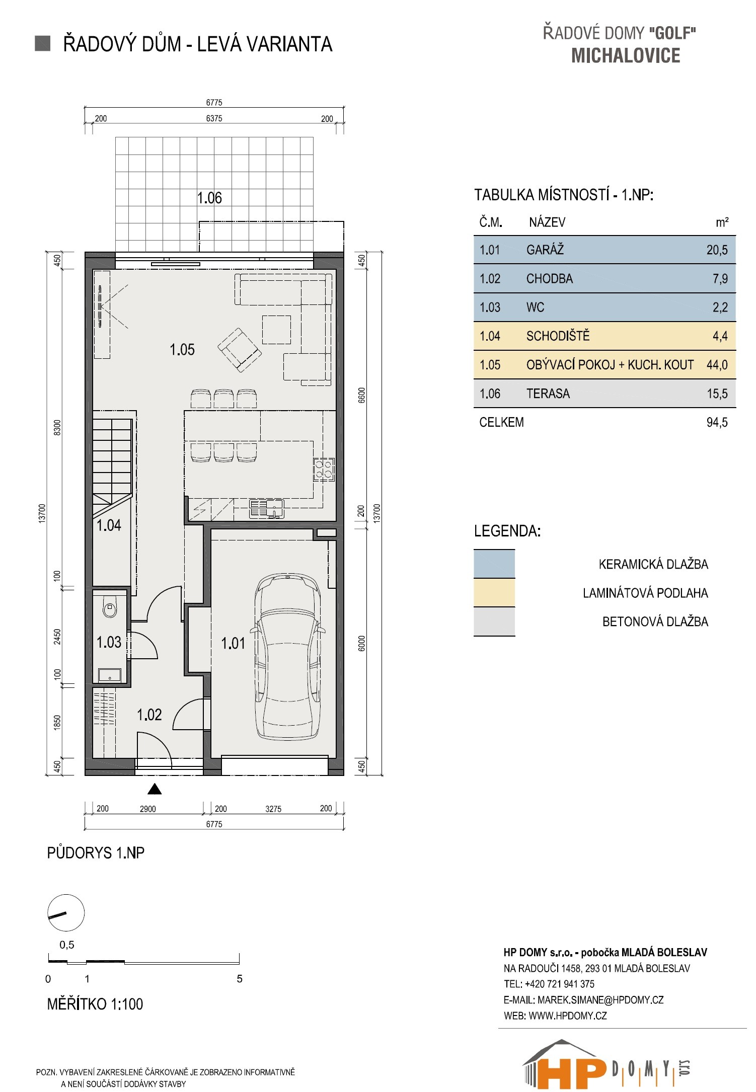
Řadové domy Golf Michalovice 2 – Mladá Boleslav

Druhá etapa řadových domů v Michalovicích – 8 řadových domů se nachází na pozemku s jihovýchodní orientací zahrad a je prostorově uspořádáno do jednoho bloku. Všechny domy mají výhled na přírodní jezírko. Přístup k domům bude zajištěn po stávající asfaltové komunikaci. Samozřejmostí je napojení domů na veškeré inženýrské sítě – voda, kanalizace a elektřina. Všechny domy budou dvoupodlažní s velmi příjemně a na uspořádání komfortně řešenou dispozicí 5+kk a do parteru umístěnou garáží s technickým koutem a se vstupem do obytné části. Další možnost parkování je před garáží. Celková užitná plocha je u všech 8 domů shodná – 156 m2.