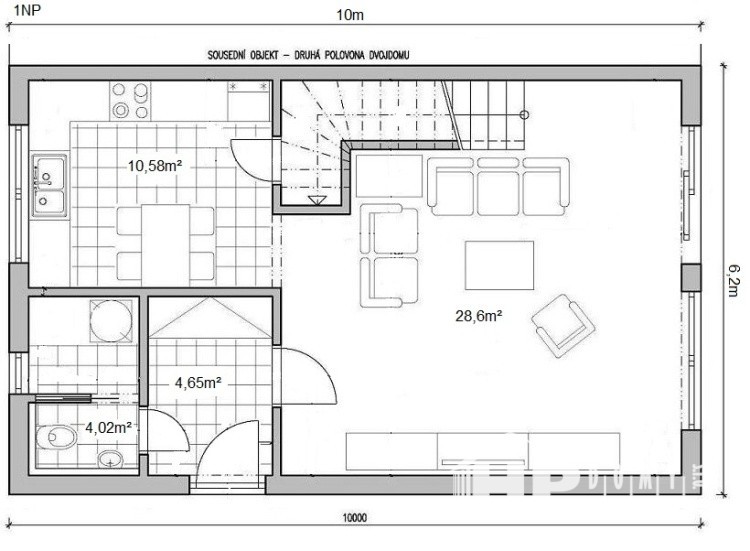
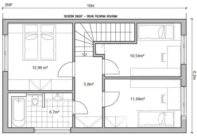
Popis realizované stavby

Čechovice u Prostějova 2 x 4+kk (dvojdům , 2×95 m2) - Využití pozemku o celkové výměře 560m2 pro stavbu dvojdomu s velmi dobrým dispozičním uspořádáním a plnohodnotnýma dvěma patry.