Katalog domů
Realizace
▾
Domy na klíč
Developerské projekty
O Stavbě
Blog
Kontakt
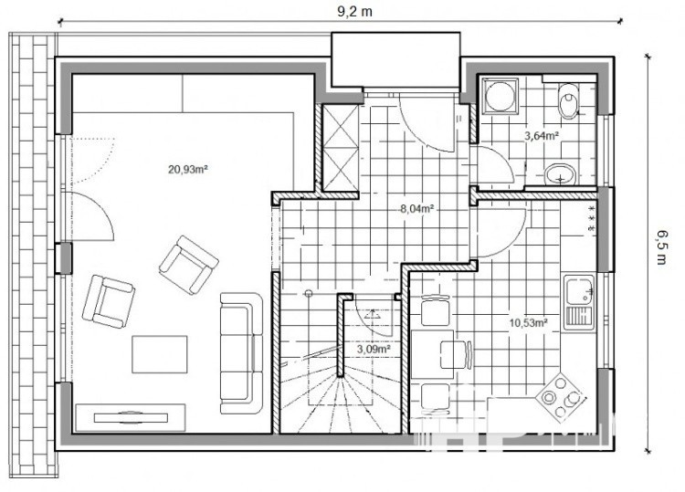
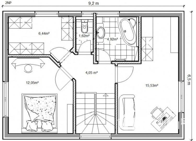
Individuální stavba, Krčmáň
Popis realizované stavby
Patrový dům na úzkém pozemku.
Zjistit více o Individuální stavba
Další realizace