Popis realizované stavby

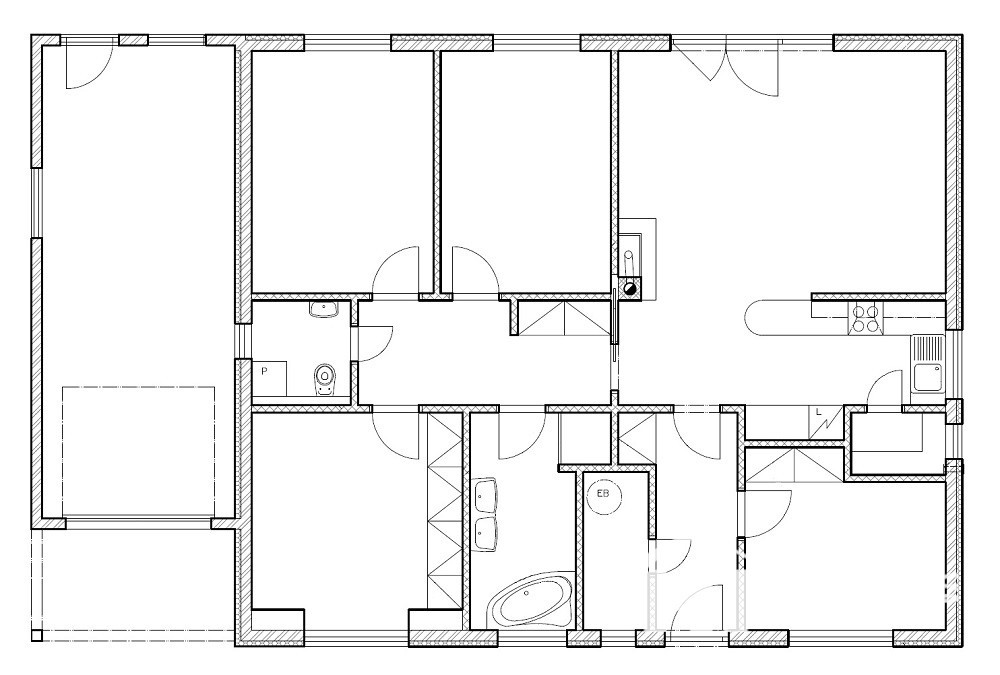
Stavba bungalovu s rozšířením o garáž, v jejíž zadní části lze oddělit prostor pro technickou místnost (např. na nářadí, sekačku a zahradní nábytek) a není tak potřeba řešit stavbu zahradního domku. Dům je řešený jako 5+kk s užitnou plochou 112m2 + garáž 27m2 s velmi dobrým vnitřním uspořádáním a prostorným obývacím pokojem s kuchyňským koutem. Konstrukce domu je řešena jako dřevostavba difuzně uzavřená, střešní krytina Tondach Samba, podlahové vytápění je standardně v obývacím pokoji s kuchyní a na přání bylo také dodáno do koupelny. K celému interiéru potom dobře ladí vnitřní dveře v bílé barvě, kdy mezi obývacím pokojem a chodbou jsou výborně zvoleny posuvné dveře do pouzdra. V celém domě je instalováno množství vestavěných skříní, což zaručuje dostatek úložného prostoru. V exteriéru je jako vkusný detail použit obklad s dekorem kamene okolo vstupních dveří.