Popis realizované stavby

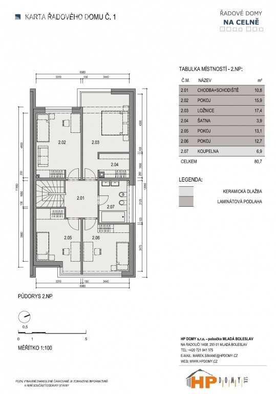
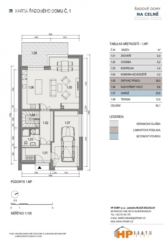
Lokalita Na Celně se nachází nedaleko centra Mladé Boleslavi v těsné blízkosti nově vznikajícího aquacentra a lesoparku Štěpánka. Celý projekt se nachází na pozemku se západní orientací zahrad a je prostorově uspořádán do třech bloků, dvakrát po pěti a jednou po čtyřech domech. Přístup k domům je zajištěn po nové komunikaci ze zámkové dlažby. Samozřejmostí je napojení domů na veškeré inženýrské sítě – voda, kanalizace, elektřina a optické internetové připojení. Všechny domy jsou zděné, dvoupodlažní, s velmi příjemně a na uspořádání komfortně řešenou dispozicí 5+kk a do parteru umístěnou garáží s technickým koutem a se vstupem do obytné části. Další možnost parkování je před garáží a podélně před domem. Celková užitná plocha je u všech čtrnácti domů shodná – 156 m2. Užitná plocha je dále rozšířena o terasu s výměrou 12,6 m2.

Projekt Na Celně - domy Mladá Boleslav
Projekt Na Celně - domy Mladá Boleslav
Projekt Na Celně - domy Mladá Boleslav
Projekt Na Celně - domy Mladá Boleslav
Projekt Na Celně - domy Mladá Boleslav
Projekt Na Celně - domy Mladá Boleslav
Projekt Na Celně - domy Mladá Boleslav
Projekt Na Celně - domy Mladá Boleslav
Projekt Na Celně - domy Mladá Boleslav
Projekt Na Celně - domy Mladá Boleslav
Projekt Na Celně - domy Mladá Boleslav
HP DOMY - realizace, projekt Mladá Boleslav
HP DOMY - realizace, projekt Mladá Boleslav
HP DOMY - realizace, projekt Mladá Boleslav