Katalog domů
Realizace
▾
Domy na klíč
Developerské projekty
O Stavbě
Blog
Kontakt
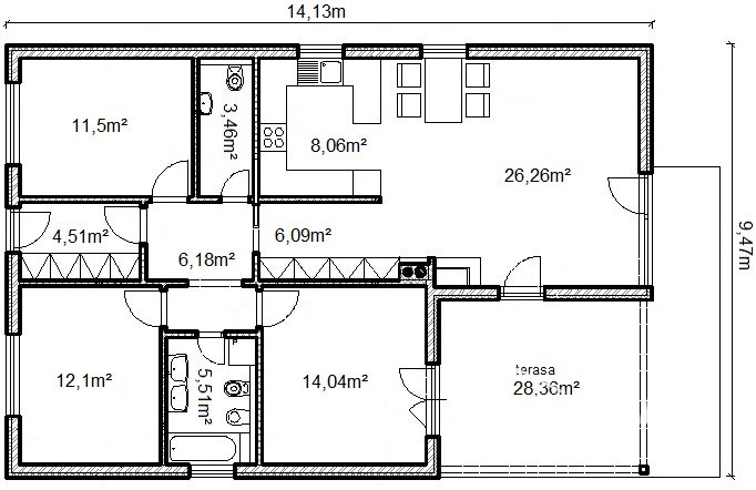
Individuální stavba, Olomouc - Holice
Popis realizované stavby
Realizace bungalovu na užším pozemku s velkou krytou terasou o výměře 28 m2.
Zjistit více o Individuální stavba
Další realizace