Popis realizované stavby

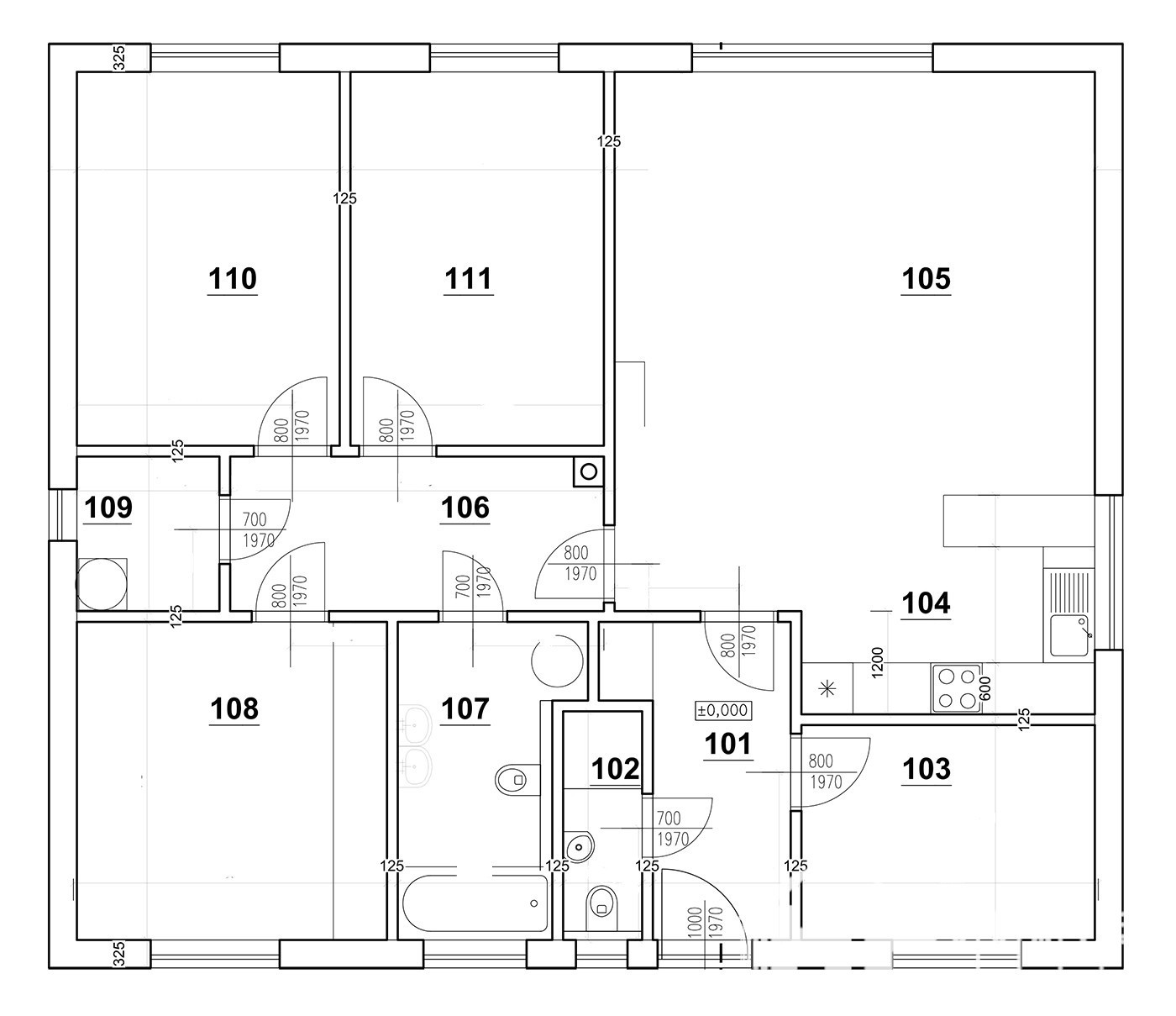
Dokončená difúzně uzavřená dřevostavba bungalovu s individuální dispozicí 5+kk o užitné ploše 113 m2 v obci Pchery. Dům nabízí prostorný obývací pokoj propojený s kuchyňským koutem, 3 ložnice, pracovnu, 2 koupelny a technickou místnost.