Katalog domů
Realizace
▾
Domy na klíč
Developerské projekty
O Stavbě
Blog
Kontakt
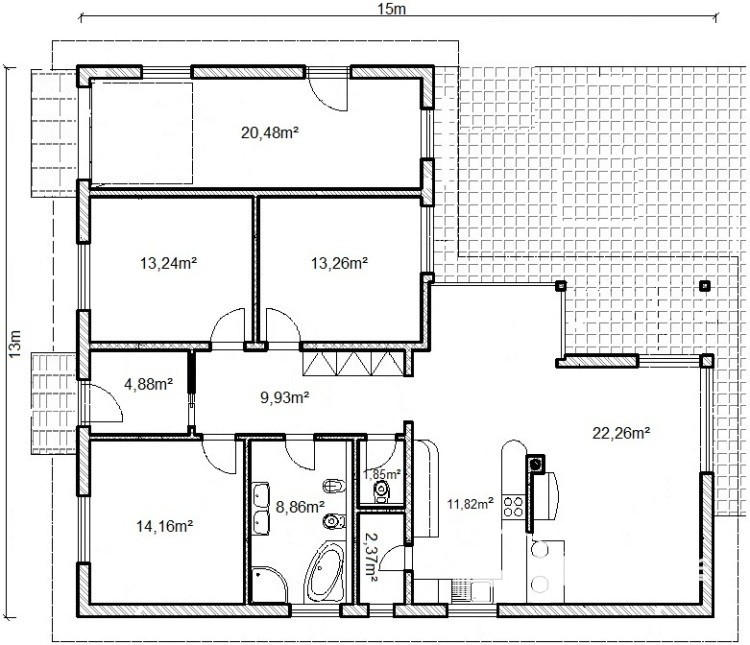
Individuální stavba, Prostějov
Popis realizované stavby
Bungalov tvarem půdorysu do písmene L s garáží.
Zjistit více o Individuální stavba
Další realizace