Popis realizované stavby

Patrový dům 5+kk s užitnou plochou 96 m2 + dvougaráží v obci Tuchoměřice, Praha-západ.

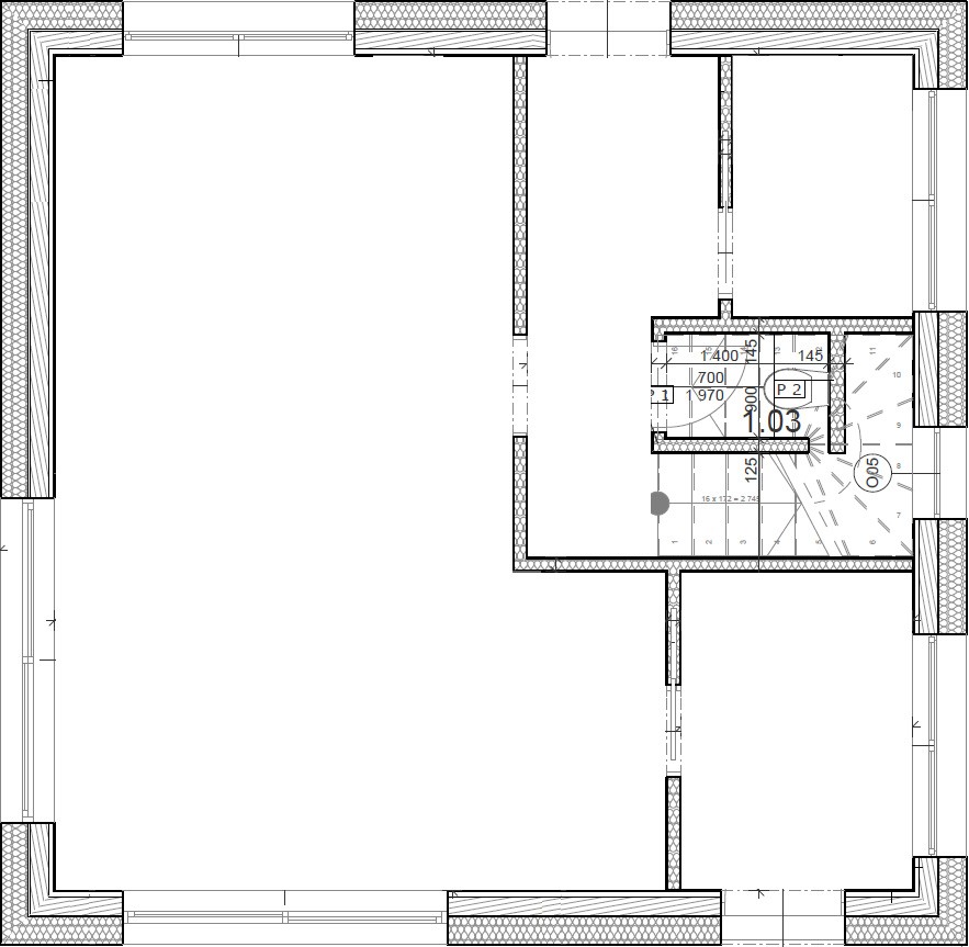
Jedná se o difúzně uzavřenou dřevostavbu moderního vzhledu se sedlovou střechou a s plnohodnotným 2. patrem. V 1. NP se nachází zádveří se vstupem do technické místnosti, WC, prostorný obýací pokoj s kuchyňským koutem a malá pracovna. 2. NP tvoří noční část domu s hlavní ložnicí, 2 pokoji a prostornou koupelnou. Dům je vybaven teplovodním vytápěním, které je napojeno na tepelné čerpadlo voda-vzduch.

O kvalitní větrání se pak stará centrální systém pasivní rekuperace. Stínění zajišťují el. ovládané exteriérové žaluzie.

Novostavba 5+kk Tuchoměřice
Novostavba 5+kk Tuchoměřice
Novostavba 5+kk Tuchoměřice
Novostavba 5+kk Tuchoměřice
Novostavba 5+kk Tuchoměřice
Novostavba 5+kk Tuchoměřice
HP Domy - realizace Tuchoměřice