Popis realizované stavby

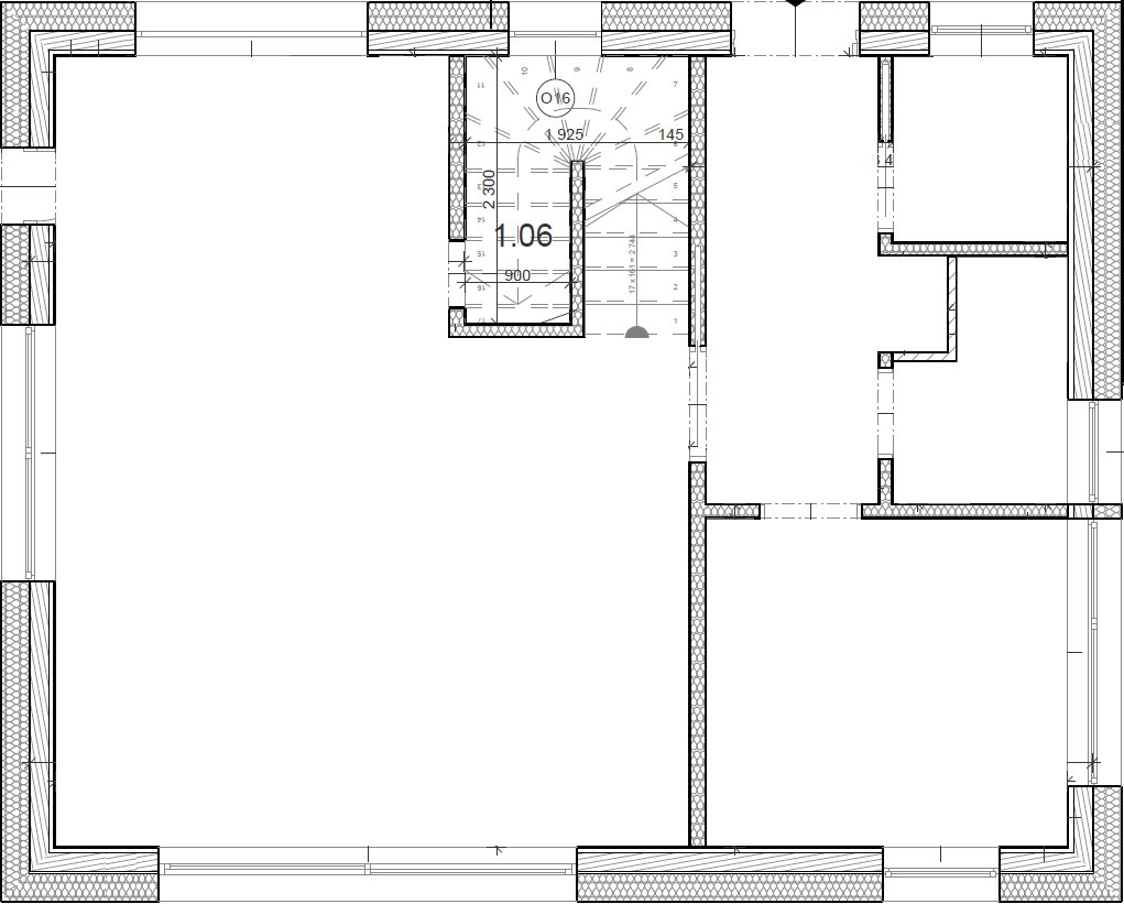
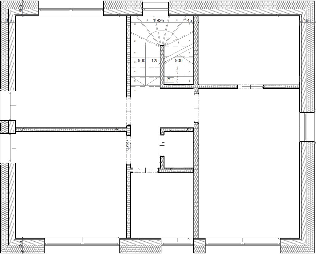
Patrový dům 5+kk s užitnou plochou 106 m2 + garáží 19 m2 v obci Tuchoměřice, Praha-západ. Jedná se o difúzně uzavřenou dřevostavbu moderního vzhledu se sedlovou střechou a s plnohodnotným 2. patrem. V 1. NP se nachází zádveří se vstupem do technické místnosti, koupelny a pracovny, dále komfortní obýací pokoj s kuchyňským koutem a spíží. 2. NP tvoří noční část domu s hlavní ložnicí se šatnou, 2 pokoji, koupelnou a samostatným WC. Dům je vybaven teplovodním vytápěním, které je napojeno na tepelné čerpadlo voda-vzduch. O kvalitní větrání se pak stará centrální systém pasivní rekuperace. Obytné místnosti domu jsou orientovány na jih – v létě zajišťují jejich stínění el. ovládané exteriérové žaluzie, v zimě pak orientace domu garantuje slušné solární zisky.

Moderní dřevostavba Tuchoměřice
Moderní dřevostavba Tuchoměřice
Moderní dřevostavba Tuchoměřice
Moderní dřevostavba Tuchoměřice
Moderní dřevostavba Tuchoměřice
Moderní dřevostavba Tuchoměřice