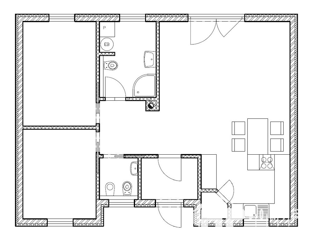
Popis realizované stavby

Výstavba bungalovu 3+kk o užitné ploše 72m2, v obci Vikýřovice, okr. Šumperk. Dům vhodný pro mladé rodiny, případně pro starší páry. Díky své velikosti není náročný na rozměry pozemku a měsíční náklady spojené s užíváním domu jsou tak velmi nízké. Dispozice má kompaktní rozměry a oddělenou denní a noční část, obývací pokoj s kuchyňským koutem o velikosti 34m2 působí, u tohoto typu domu, velmi prostorně.